Skip to main or footer

מבקרים יקרים, בשל המצב בישראל, יתכנו עיכובים בתרגומי המודעות, הצוות שלנו במילואים. אנו מודים לכם על הסבלנות ומאחלים ימים טובים יותר.

דירה מחולקת ל-3 יחידות להשקעה ברחוב בילו, חיפה

תאריך יצירה6 ביוני 2024

תאריך עדכון אחרון6 ביוני 2024

דירה מחולקת ל-3 יחידות להשקעה ברחוב בילו, חיפה
דירה מחולקת ל-3 יחידות להשקעה ברחוב בילו, חיפה
דירה מחולקת ל-3 יחידות להשקעה ברחוב בילו, חיפה
דירה מחולקת ל-3 יחידות להשקעה ברחוב בילו, חיפה
דירה מחולקת ל-3 יחידות להשקעה ברחוב בילו, חיפה
דירה מחולקת ל-3 יחידות להשקעה ברחוב בילו, חיפה
דירה מחולקת ל-3 יחידות להשקעה ברחוב בילו, חיפה
דירה מחולקת ל-3 יחידות להשקעה ברחוב בילו, חיפה
דירה מחולקת ל-3 יחידות להשקעה ברחוב בילו, חיפה

‏1,900,000 ‏₪

19,000 / מ"ר

14 ביל"ונחלהחיפה

100 מ"ר

חדרים6

תיאור

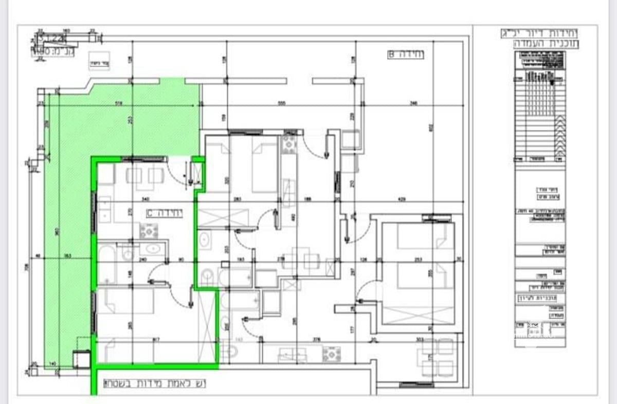
מדובר בדירה המוקפת בגינה פרטית בקומת קרקע, אשר עברה שיפוץ יסודי כולל בניית ממ"ד ויציקת רצפת בטון חדשה. בנוסף, סביב המתחם נבנתה חומה מבטון מזוין בשילוב גדר ברזל אלגנטית. המתחם חולק ל-3 יחידות, וכל יחידה כוללת חדר שינה, סלון, שירותים, מקלחת, והדירות אובזרו כראוי. הכל באיכות הטובה ביותר תוך מחשבה על שימוש מושכל בחומרים שיחזיקו מעמד לטווח ארוך ככל שניתן. המתחם רוצף באבן איכותית, הקירות עברו איטום מקצועי ומערכת הביוב כולל הבורות, השוחות והניקוזים נבנו מחדש על ידי בעלי מקצוע מעולים בתחומם כדי למנוע תקלות עתידיות. מצורפת תוכנית אדריכלית לכל יחידה. החוזים כיום הם: 1. חוזה שכירות על סך 2,900 ש"ח מתאריך 17/01/24 עד תאריך 16/01/25 - בפועל משולם 3,000 ש"ח כולל חשמל. 2. חוזה שכירות על סך 2,800 ש"ח מתאריך 26/03/24 עד תאריך 25/03/25 - בפועל משולם 2,900 ש"ח כולל חשמל. 3. חוזה שכירות על סך 2,800 ש"ח מתאריך 29/01/24 עד תאריך 28/01/25 - בפועל משולם 2,900 ש"ח כולל חשמל. סך הכל הכנסה משכירות: 8,800 ש"ח לחודש כולל חשמל.

פרטים כלליים

חדרי שינה3

חדרי אמבטיה3

מצב הנכסמשופץ

פנימיים

מיזוג

ממ"ד

חיצוניים

חצר/גינה

פרטי המבנה

בקרבת מקום

תחנת אוטובוס

בית כנסת

קופת חולים מכבי

קופת חולים מאוחדת

שוק

ID: clx33qjaf05feo131wdfjk7zr

פרטי המתווך

Shimon Goldstein

רי/מקס Selected

חיפה

WhatsApp

נכסים דומים

למכירה דירת 4 חדרים ברמות רמז, חיפה
למכירה דירת 4 חדרים ברמות רמז, חיפה
‏1,250,000 ‏₪

18 יהודה בורלארמות רמזחיפה


3
חדרי שינה
1
חדרי אמבטיה
85
שטח (מ"ר)
למכירה דירת 3 חדרים עם גינה צמודה בנווה שאנן, חיפה
למכירה דירת 3 חדרים עם גינה צמודה בנווה שאנן, חיפה
‏1,090,000 ‏₪

25 נתיב חןנווה שאנןחיפה


2
חדרי שינה
1
חדרי אמבטיה
60
שטח (מ"ר)
למכירה דירת 3 חדרים במרכז הכרמל, חיפה
למכירה דירת 3 חדרים במרכז הכרמל, חיפה
‏2,250,000 ‏₪

23 שדרות הצביכביריםחיפה


2
חדרי שינה
1
חדרי אמבטיה
80
שטח (מ"ר)
למכירה דירת 2.5 חדרים בהדר, חיפה
למכירה דירת 2.5 חדרים בהדר, חיפה
‏790,000 ‏₪

28 בן יהודההרצליהחיפה


1
חדרי שינה
1
חדרי אמבטיה
60
שטח (מ"ר)
להשכרה דירת סטודיו בנווה שאנן, חיפה
להשכרה דירת סטודיו בנווה שאנן, חיפה
‏2,600 ‏₪

גדליהונווה שאנןחיפה


1
חדרי שינה
1
חדרי אמבטיה
30
שטח (מ"ר)
להשכרה דירת 3 חדרים בהדר עלין, חיפה
להשכרה דירת 3 חדרים בהדר עלין, חיפה
‏2,800 ‏₪

רבי עקיבאהדר עליוןחיפה


2
חדרי שינה
1
חדרי אמבטיה
70
שטח (מ"ר)
דירת 5 חדרים למכירה ברחוב משמר הגבול, חיפה
דירת 5 חדרים למכירה ברחוב משמר הגבול, חיפה
‏1,580,000 ‏₪

משמר הגבולרוממהחיפה


4
חדרי שינה
2
חדרי אמבטיה
103
שטח (מ"ר)
דירת 4 חדרים למכירה ברחוב שער הגיא 8, חיפה
דירת 4 חדרים למכירה ברחוב שער הגיא 8, חיפה
‏1,620,000 ‏₪

8 שער הגיאגבעת דאוניסחיפה


3
חדרי שינה
1
חדרי אמבטיה
120
שטח (מ"ר)
דירת 4 חדרים למכירה ברחוב אלכסנדר ינאי, חיפה
דירת 4 חדרים למכירה ברחוב אלכסנדר ינאי, חיפה
‏2,150,000 ‏₪

אלכסנדר ינאיכרמליהחיפה


3
חדרי שינה
1
חדרי אמבטיה
95
שטח (מ"ר)
פנטהאוז 5 חדרים למכירה ברחוב תל מאנה, חיפה
פנטהאוז 5 חדרים למכירה ברחוב תל מאנה, חיפה
‏4,999,000 ‏₪

תל מאנהאחוזהחיפה


4
חדרי שינה
1
חדרי אמבטיה
150
שטח (מ"ר)
פנטהאוז 5 חדרים למכירה ברחוב חמדה, חיפה
פנטהאוז 5 חדרים למכירה ברחוב חמדה, חיפה
‏4,490,000 ‏₪

חמדהנאות פרס - מרכז הקונגרסיםחיפה


4
חדרי שינה
2
חדרי אמבטיה
160
שטח (מ"ר)
קוטג' 7 חדרים למכירה ברחוב צפרירים, חיפה
קוטג' 7 חדרים למכירה ברחוב צפרירים, חיפה
‏3,890,000 ‏₪

צפריריםמרכז הכרמלחיפה


5
חדרי שינה
3
חדרי אמבטיה
180
שטח (מ"ר)
הצג עוד

רוצים להישאר מעודכנים?

לקבלת כל הטיפים וההמלצות שיעזרו לכם במציאת הנכס הבא שלכם בישראל, הרשמו עכשיו לניוזלטר של אימו ישראל!


הבית הבא שלך נמצא כאן | אימו ישראל

הבית הבא שלך נמצא כאן

ניווט מהיר

דף הבית

ליצירת קשר

צרו קשר

מי אנחנו

שאלות נפוצות

הכירו את סוכני הנדל"ן

עקבו אחרינו

HE


© 2025 כל הזכויות שמורות לאימו ישראל.